No.268【羽月校区/6K/昭和46年築/190万】「置いてきた子ども心、見つかりました。」:伊佐市空き家バンク
2025年11月15日
「置いてきた子ども心、見つかりました。」

こんにちは!空き家バンク担当の福田です。気付けばもう11月。伊佐市もだいぶ寒くなってきました。10月前半は30度を超えていたのに、最近の朝方は10度以下の日もちらほら。秋というより時折冬を感じるようになってまいりました。のんびり構えがちな私のクローゼットには、いまだに半袖と長袖が入り混じる始末。目まぐるしく変わる気温に心と身体が追いつかず、パタパタと忙しく冬支度を始めた今日この頃です。
今回の物件は羽月校区に位置しております。コンビニやホームセンターや飲食店などなど、生活に必要な色々が揃っている市街地までは車で10分圏内。そして小学校、郵便局、手作りお豆腐がオススメの地元のスーパーも5分圏内と、生活しやすい環境が魅力的な立地でございます。
こちらの坂道を登り


住宅街の小道を進んでいきますと、今回の物件のエントランスが見えて参りました。
母屋の目の前には、車1台分ほどのスペースの屋根付き駐車場があります。

こちらが正面玄関。
ではお邪魔いたします。


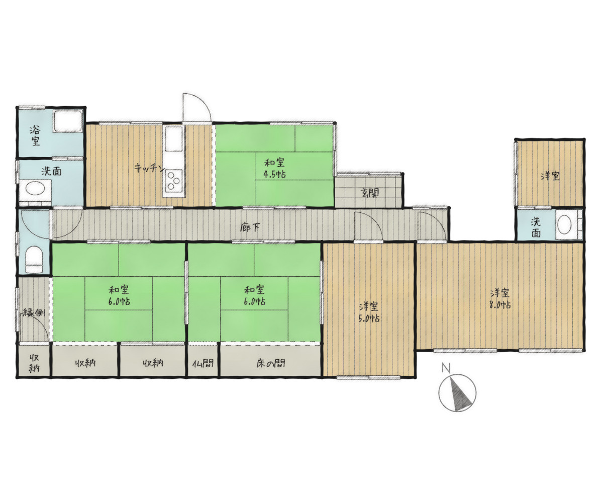
今回の物件の廊下は潔く中央に1本だけ。故にお部屋の行き来も簡潔です。
寒さの厳しい伊佐市、「廊下は寒いからできるだけ動きたくない」そんな貴方にピッタリな間取りです。

まずは玄関の目の前、アーチ型の扉がキュートなこちらのお部屋からご案内。

こちらは5帖の洋室。南向きの窓が大きい分、自然光が良く入って来てくれます。

右手にある大きなガラス戸を開けますと

和室二間へと繋がっていました。
暑い夏は襖と引き戸を取っ払って風を通し、寒い冬は部屋を仕切って暖めるのも一つの手です。
お部屋の仕切り方を変えるだけで、雰囲気もガラリ。季節の変わり目、バンク担当福田にとっても、それがちょっとした楽しみとなっています。

洋室のお隣には4.5帖の和室。

竿縁天井からは豆電球が吊り下がり、古き良きを演出してくれています。

そのお隣には6帖の和室。
和室二間の収納物は、こちらの押入れで間に合いそうです。

和室にはちょっとした縁側がついています。

縁側からは、物件周辺の閑静な住宅街からは想像できない風景が広がっていました。
小さな椅子とテーブルを置いてコーヒーでも飲みたいなあ。のんびりとしたくなる雰囲気にホッとします。

続きまして、玄関すぐ右手には4.5帖の和室をご案内。

同じ空間にはキッチンが併設されています。
お写真中央の扉からは、お外の駐車場へと繋がっているので調達した食材を運ぶのにも都合が良い動線となっております。

カウンターキッチンなのでご飯の配膳も楽々。
和室に置いたテレビでプロ野球中継を見ながら、晩御飯を作りながらビールを一口。「晩御飯できたで。そこでゴロゴロしてんと、持っていってや〜」なんて、たわいのない日常を想像して思わずほっこり。自然と家族との会話も増えそうな良い位置関係です。

過ごす時間が長くなりそうなこちらのお部屋には、まだ初々しさが残るエアコンも設置されていました。
続きまして水回りへとご案内。

こちらは洗面所、脱衣所。お写真右手には洗濯機置き場も確認できました。

母屋の角に位置するお風呂場は、角張っていてなんだか可愛らしい空間になっています。
浴槽はお湯が冷めにくいのが特徴の昔ながらのステンレス製。お湯は電気焚きですが、湯沸かし器が作動するかどうかは、要確認との事です。

お手洗いは水洗式でございます。
最後に今回の物件のワクワク、ドキドキするようなお部屋をご紹介させていただきます。

お部屋へと繋がる扉は見逃してしまいそうなくらいそっと、玄関左手に位置しておりました。

「おー!広い。」おそるおそる開いた扉の向こうには、秘密基地っぽい雰囲気の8帖の洋室が広がっていました。そして人が出入りできそうなくらい大きな窓が2箇所。よく光も入り、風も気持ちよく入って来そうです。

お部屋にはお洋服の収納に便利そうなスペースも。いざという時には協力すれば大人5、6人は隠れられるんじゃあないかという広さです。

奥へ進みますと、こんなところに洗面台が。水の有無は秘密基地として利用する時にも重要なポイントの1つとなることでしょう。

さらに引き戸の向こうには2帖ほどの、アメリカ国防総省 通称「ペンタゴン」を思わせる五角形のお部屋もありました。

「ペンタゴン」の引き戸からは外への出入りもできますし、カーテン越しに相手に気づかれることなく誰が来たのか確認もできます。
ますます秘密基地っぽさが増して来ましたねえ。。。いつの間にか、どこかに置き忘れてきた子どもの頃のワクワク、ドキドキを思い出すような空間なのでした。
いかがでしたでしょうか?
廊下を最小限に留め、お部屋のスペースを広くとっている為か、外観からの印象とは裏腹に母屋は広く感じられました。
和室の縁側からの景色、キッチンと和室、角張っているお風呂場、秘密基地っぽいお部屋。住めばじわじわと愛着が湧いてきそうな今回の物件。お気になられた方は是非一度、不動産屋さんにお問い合わせくださいませ。
間取図

登録台帳
| 登録番号 |
268 |
分類 | 売却 | 価格 | 190万円 | |
|---|---|---|---|---|---|---|
| 所在地 |
伊佐市大口白木 |
契約種別 | 不動産会社媒介 | 建築時期 |
S46年 |
|
| 物件の概要 | 面積 | 構造 | ||||
| 建物 | 1F |
60.07㎡ |
木造 | |||
| 2F | ||||||
| 空き家になった時期 | H16 | |||||
| 増改築歴 |
有 |
|||||
| 家財有無 | 無 | |||||
| 間取り | 1F |
6K |
||||
| 2F | ||||||
| 設備等状況 | 電気 | 引込済 | ガス | 風呂 |
電気(動作要確認) |
|
| 水道 | 上水道 | 下水道 | 浄化槽 | トイレ | 水洗 | |
| 車庫 | 有 | 庭 | 無 | 物置 | 有 | |
| 面積 | 221.51㎡ | 農地 | 無 | 駐車場 |
有(1台分) |
|
| その他 | ||||||
| 主要な施設等までの距離 |
市役所まで2.8km、警察署まで3.0km、保育所まで1.8km、小学校まで0.6km、中学校まで4.3km、高校まで3.6km、病院まで3.2km、スーパーまで1.2km |
|||||
| 特記事項 | ||||||
内覧の前に・・・
伊佐市の空き家バンクでは、社会的に負の遺産と捉えられることが多くなってきている“空き家”に光を当てて、独自の視点により物件の魅力をご紹介することで、情報発信をするお手伝いをしております。
市の役割等についてこちらをご一読ください
空き家はあくまでも中古住宅であり、新築のように完璧な状態であることはほとんどありません。
内覧やご購入をされるに当たっては、物件の詳細情報等について、担当する不動産業者やオーナーさんによく確認いただき、納得された上でご検討いただきますようお願いいたします。
【確認項目の一例】
・雨漏りの有無について
・シロアリ被害がないかどうかについて
・地下水や山水が付いてくる物件である場合、希望する利用用途を満たす水質かどうかについて(厚生労働省の案内)
・境界のことや敷地特有のことなど、近隣との関係性について
・自然豊かであるがゆえ、虫や動物が出ます・・・
などなど、拾い上げるときりがありませんが、「こんなはずでは無かった・・・」のギャップを少しでも減らせるように、事前に確認できることはしておくことが大事になります。
媒介業者
ウェルカム不動産
- TEL0995-29-5720



