No.261【大口校区/7LDK/昭和50年築/1000万円】「外見と中身のギャップに萌えたあの日。」:伊佐市空き家バンク
2025年10月16日
「外見と中身のギャップに萌えたあの日。」

こんにちは!空き家バンク担当の福田です。10月に入り伊佐市にも秋がやって来ました。十五夜の日、真ん丸の大きなお月様があんなにも綺麗に、そして鮮明に見られた事に感動しました。「えらい星が綺麗に見えるなあ」と移住当初から感じていたのですが、実は伊佐市、過去に5度も「星空日本一」に輝いているのです!これから夜空が綺麗な季節やってきます。ぜひ一度、伊佐の夜空を見に来られてくださいませ。
今回はなんとなんと。住居スペース、店舗スペース、そしてお隣の貸家も含まれているボリューム満点の物件が登場いたします。
大口校区、伊佐の市街地に位置し、郵便局は徒歩圏内、居酒屋は目の前。大型スーパーやドラッグストア、ホームセンターも車で5分圏内と生活しやすい立地も魅力の1つです。

早速こちらの通りを進み

今回の物件へと参りましょう。

まずは店舗スペースからご案内。

元美容室だったこちらのスペース。広すぎず、狭すぎず。何か新しい事を始めるには丁度良いサイズ感です。シャンプー台とパーマ機がそのまま残されておりました。

別のアングルからもどうぞ。

そのまま美容室にしても良し、喫茶店、ダンススクール、ヨガスタジオ、事務所などなどなど。ご自身の趣味のお部屋にしても良さそうですね。
シャンプー台とパーマ機以外は特に荷物は無く、床や壁の状態も良いので、新しく利用する際も初期費用がある程度抑えられるかも知れません。

こちらが住居スペースの正面玄関。
お邪魔いたします。

こぢんまりとした玄関。廊下への段差が低く、足元には滑り止め、手元には手すり。住む人にとっても優しい玄関です。

玄関すぐ右手の扉の向こうには、ご紹介しました店舗スペースが。こちらでお店を営めば、憧れの0分出勤です。「もし8時出勤だったとしたら、某TV番組の朝のじゃんけんをしてから歩き出しても間に合うな」、、、無駄な妄想が働いてしまいました。毎日の通勤時間でお困りの方にもおすすめなのでございます。
気を取り直しまして、玄関正面の廊下を進みますと

そこには広ーいリビングダイニングキッチン(LDK)が広がっていました。

システムキッチンが採用されており、嬉しい食洗機付き。北側に位置しておりますが、暗さを感じません。多めに設置されている窓から自然光が心地よく入って来てくれています。

キッチンの向かいには

小綺麗な床の間が印象的な6畳の和室が。
団欒の時、畳でゴロゴロしている人も、リビングに置いたソファでまったりしている人も、お互いの声が届くことでしょう。そんな安心感のあるお部屋の位置関係が好印象です。
和室の奥、物件の南側には、、、

書斎がそっと位置しておりました。
そもそも書斎とは・・・・読書あるいは執筆するための部屋。なんて贅沢な空間なんだ、、!机にもちゃんと自然光が届くような窓の配置にもグッときます。

こちらには収納スペースも完備。和室と隣接しているので、使い勝手も良さそうです。
続きまして水回りをご紹介。どれもリフォーム済みでとても綺麗にされています。

洗面所とお風呂場。洗濯機置き場もこちらです。

浴槽はシステムバス。灯油焚きです。

そしてお手洗い。どれも使用感はあまり感じられなく、まるで新築のようなピカピカの佇まい。

お手洗い周りの物を収納するのにぴったりの収納スペースも発見しました。
「然るべき場所に然るべきスペースと物を」そんな考えを今回の物件の随所から感じられます。

続きまして玄関横の階段から二階へと参りましょう。

二階には10帖ほどの洋室と

そのお隣には着付けスペースとして利用されてたであろう、とてつもなく広い和室が。
「まさかこれだけの大広間があるとは!」物件の外観からは想像できなかったお部屋に、思わずびっくりしてしまいました。さて、どのように活用しましょうか。とても嬉しい悩みとなりそうです。

和室にはお着物を収納していたであろう大容量の収納スペースと

畳1帖くらいの大きな姿見もそのまま残されています。

二階はお手洗いも完備。とてもお綺麗にされています。

同じフロアにはもう一つ小さな階段があり、中二階のようになっています。

階段を登った先には、4.5帖の同じ間取りの洋室が2部屋、仲良く並んでおります。
※双子のように瓜二つだったので、もう一つのお部屋はお写真割愛させていただきました。

どちらのお部屋にもたっぷり目の収納スペースが。

先程の双子のお部屋のどちらからも繋がっているのは、中二階中心に位置する洋室。

備え付けの棚に夢が膨らみます。広いスペースにはテレビ置いて、周りには好きな本や雑貨、レコードも並べたりして、、、良いですねえ。ずっと居座ってしまいそうなお部屋になりそうです。

反対側にも棚がありました。

さらにその奥には小さめの洋室があり、

そこからはバルコニーへと繋がっております。お写真ではわかりづらいですが洗濯物も沢山干せそうな広さです。

一階のリビングからお外に出てみましょう。

お庭には小さくて可愛らしいサイズ感の菜園スペースと



昔、蘭小屋として使用されていた小屋がありました。使いやすそうな棚がある事、コンセントが繋がっている事が嬉しいポイント。納屋としてももちろん、多肉植物、観葉植物を育てて店舗スペースで販売。なんてことも想像できます。

最後に駐車場のご紹介。高さが気になる方も多いのではと思い、実際に試してみました。

車高、約190センチ。よく目かける軽バンタイプの車が、、、


納まりました。ピッタリでございます。軽自動車、車高の低い普通車でしたら、2台ほど駐車可能かも知れません。
※駐車出来るのかチャレンジは自己責任でお願いいたします。

いかがでしたでしょうか。ボリューム満点の今回の物件。立地にも恵まれておりますので、貸家から家賃収入を得ながら、お店を営む。店舗スペースも貸し出す。他にもまだまだ色んな選択肢が考えられそうです。
母屋に関しましても、間取りの区切り方や、収納スペースの取り方、そして窓の配置がとてもよく考えており、生活がしやすそうだなと感じました。お気になられた方は、ぜひ1度不動産屋さんまでお問い合わせの上、内覧されてください。貴方にも外見と中身のギャップに萌える日がやって来るかも知れません。
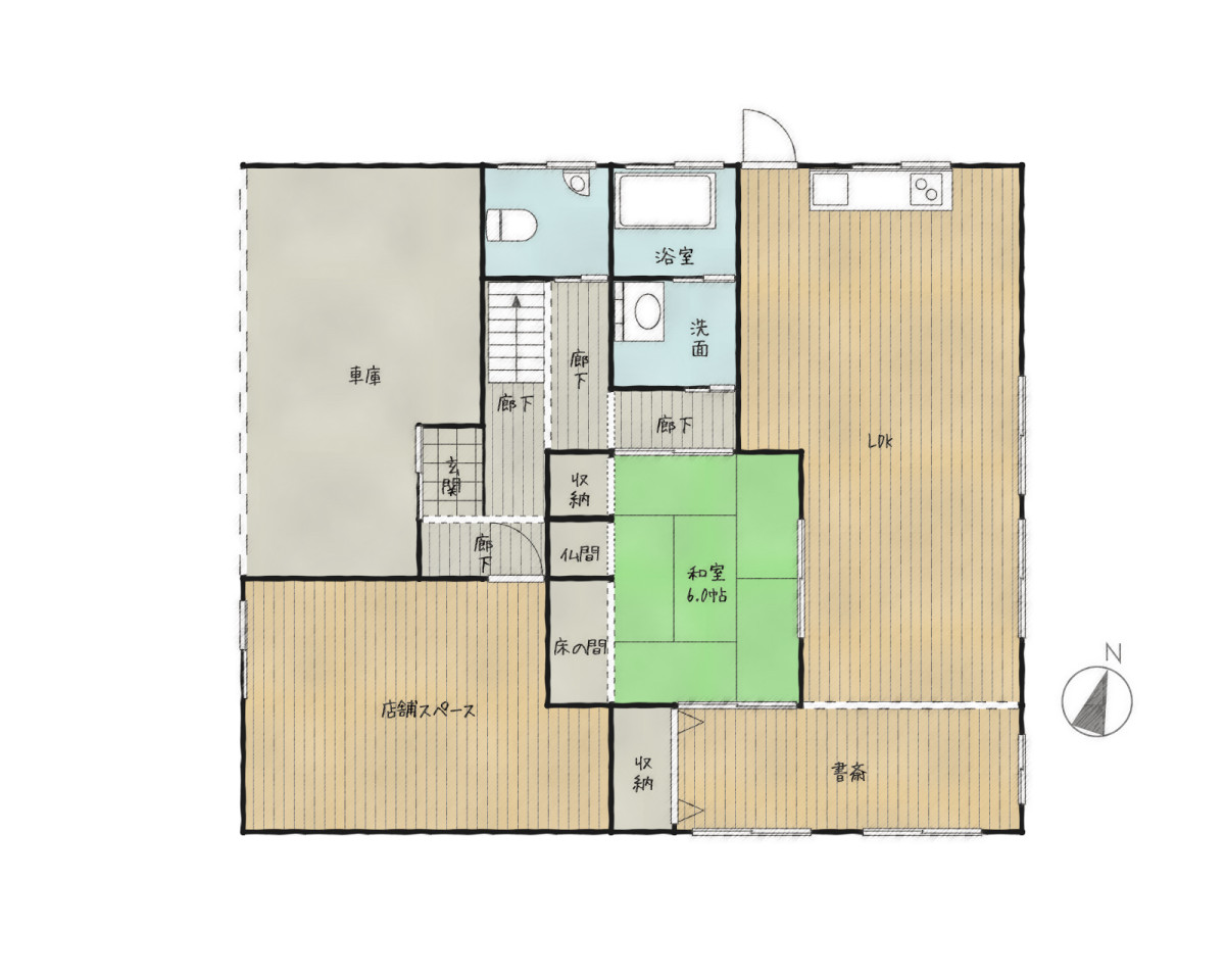
間取り図
1F

2F

登録台帳
| 登録番号 |
261 |
分類 | 売買 | 価格 | 1000万円 | |
|---|---|---|---|---|---|---|
| 所在地 |
伊佐市大口元町 |
契約種別 | 不動産会社媒介 | 建築時期 |
S50年 |
|
| 物件の概要 | 面積 | 構造 | ||||
| 建物 | 1F |
107.57㎡ |
木造 | |||
| 2F | 112.23㎡ | |||||
| 空き家になった時期 | 令和7年 | |||||
| 増改築歴 |
有 |
|||||
| 家財有無 | 無 | |||||
| 間取り | 1F |
1LDK |
||||
| 2F | 6R | |||||
| 設備等状況 | 電気 | 引込済 | ガス | ボイラー | 風呂 |
灯油 |
| 水道 | 上水道 | 下水道 | 浄化槽 | トイレ | 水洗 | |
| 車庫 | 有 | 庭 | 有 | 物置 | 有 | |
| 面積 | 204.90㎡ | 農地 | 無 | 駐車場 | 有(2台分) | |
| その他 | ||||||
| 主要な施設等までの距離 |
市役所まで0.7km、警察署まで0.7km、保育所まで0.6km、小学校まで0.6km、中学校まで2.4km、高校まで1.7km、病院まで1.7km、スーパーまで0.8km |
|||||
| 特記事項 | ||||||
内覧の前に・・・
伊佐市の空き家バンクでは、社会的に負の遺産と捉えられることが多くなってきている“空き家”に光を当てて、独自の視点により物件の魅力をご紹介することで、情報発信をするお手伝いをしております。
市の役割等についてこちらをご一読ください
空き家はあくまでも中古住宅であり、新築のように完璧な状態であることはほとんどありません。
内覧やご購入をされるに当たっては、物件の詳細情報等について、担当する不動産業者やオーナーさんによく確認いただき、納得された上でご検討いただきますようお願いいたします。
【確認項目の一例】
・雨漏りの有無について
・シロアリ被害がないかどうかについて
・地下水や山水が付いてくる物件である場合、希望する利用用途を満たす水質かどうかについて(厚生労働省の案内)
・境界のことや敷地特有のことなど、近隣との関係性について
・自然豊かであるがゆえ、虫や動物が出ます・・・
などなど、拾い上げるときりがありませんが、「こんなはずでは無かった・・・」のギャップを少しでも減らせるように、事前に確認できることはしておくことが大事になります。
媒介業者
岡野土地開発
- TEL 0995-28-2722



